西山区环城南路747号附1号. +4008719527 二十五年装修品牌

案例详情

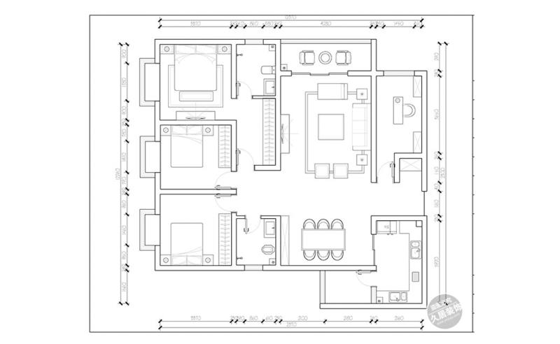
大渔欣城160㎡装修 看设计言生活!

光华能照物,入世亦居奇!美好的事物,流露着人们对真/善/美的期许和追求,家居装修也无处其右。模式化的装修设计已无法满足年轻人的审美,作为深耕21年装修及设计的久居装饰来讲,工艺和设计上不断自我颠覆求新,才能不断适应人们对家居更高的需求,我们坚信蜕变的痛苦,才能破茧成蝶化而美丽。

在昆明从事跨境贸易的李总,是一枚追逐“完美主义”症患者,有独特的审美方式,生活中,是个追求品质的男人,正因如此导致双方设计周期持续了将近60天之久,显然我们的设计师已极尽耐心,整体设计历经N次改版后最终落定,再此也非常感谢"对久居装饰的信任,本次给客户李先生大渔欣成的方案再次证明了好的设计一定是通过双方深入沟通后才会呈现。


从平面图上来分析就足以体会到李先生优雅且富贵的品味,主卧次卧多功能的配置是属于少部分人的,显然李总(李先生)的实力是允许的,考虑到目前就夫妻两位住,近段时间也不打算要小孩,所以功能区域上我们几乎是围绕夫妻二人为主,整体的设计相对比较中规中矩,结构上没有做过多的改变,重点是立面造型、家居配色等部分花费的时间、精力比较多。

方案效果整体构思现代风格,客厅的装修风格也体现了主人的生活态度以及喜好,整个空间采用简洁明快的造型和木色相以结合,来突出空间亮点,过道吊顶的错位使空间有层次感,创造出一种归属感的环境。整体空间色彩以木色系为主,稍有深色加以点缀。


地砖选择两种以上的色彩做了拼色设计,这样整体的视觉效果更具冲击力,不过工序较为复杂,工费有略微的上升,但在客户预算承受范围内。

过道与餐厅拐角呈列的酒都属于李先生的过往,每一瓶酒都是一次对重点经历节点的纪念。


把握形式与空间的关系是设计师的一个关注点,玻璃隔断作为开放式书房的设计那是最合理的,因为玻璃隔断有着良好的优点,首先它不会遮挡住客厅或者其他地方的光线,并且能让书房的采光更好。玻璃隔断使得书房与客厅有成为了一体。工作学习时又可以与外界隔离开来,减小干扰。

生活最美之于美食,一日用餐劳作作为对味蕾的犒劳和休闲方式,厨房采用了半开放式设计,从之前的独立封闭、演变到现如今的餐厨互动,这注定是生活方式的一次革命。


作为享受家庭团聚的重要时刻重要地点来讲,客厅基本的需求要素是不可或缺的。所以在客厅以及卧室简单设计时,需要考虑的因素就包括了灯光、格局、沙发、电视背景墙,装饰品,卧室的床铺、衣柜、等。这些物品虽然不需要太过复杂,只需要简单大方实用即可,但是却必须样样俱全,否则也就画蛇添足,失去了客厅及卧室最核心最重要的功能。

卫生间设计要点之地面:要注意防水、防滑,地面的瓷砖铺陈非常重要,稍不注意滑倒就会对身体造成伤害,我们平时要多点注意卫生间的地板设计。 卫生间设计要点之顶部:防潮、遮掩最重要,顶部的防潮也很重要,有些家庭的顶部会出现渗水的现象,这就是设计不合理出现的。 卫生间设计要点之洁具:追求合理、合适的洁具 卫生间设计要点之电路:安全第一,跟以上说的一样,安全是最重要的。 卫生间设计要点之采光:明亮即可,明亮与否可以影响人的心情,增添生气。


阳台上放置一张小桌,几张休闲椅,闲暇时邀请朋友一起聊天喝茶,一起享受午后的阳光,和心爱的人一起虚度时光,就如同一米阳光里所述-当睁开眼睛看见清晨的第一缕阳光,照进屋子里,我才意识到生活这么美。是的!生活之美好,值得我们珍视每一个瞬间,每一个细节,久居装饰与你我共勉!